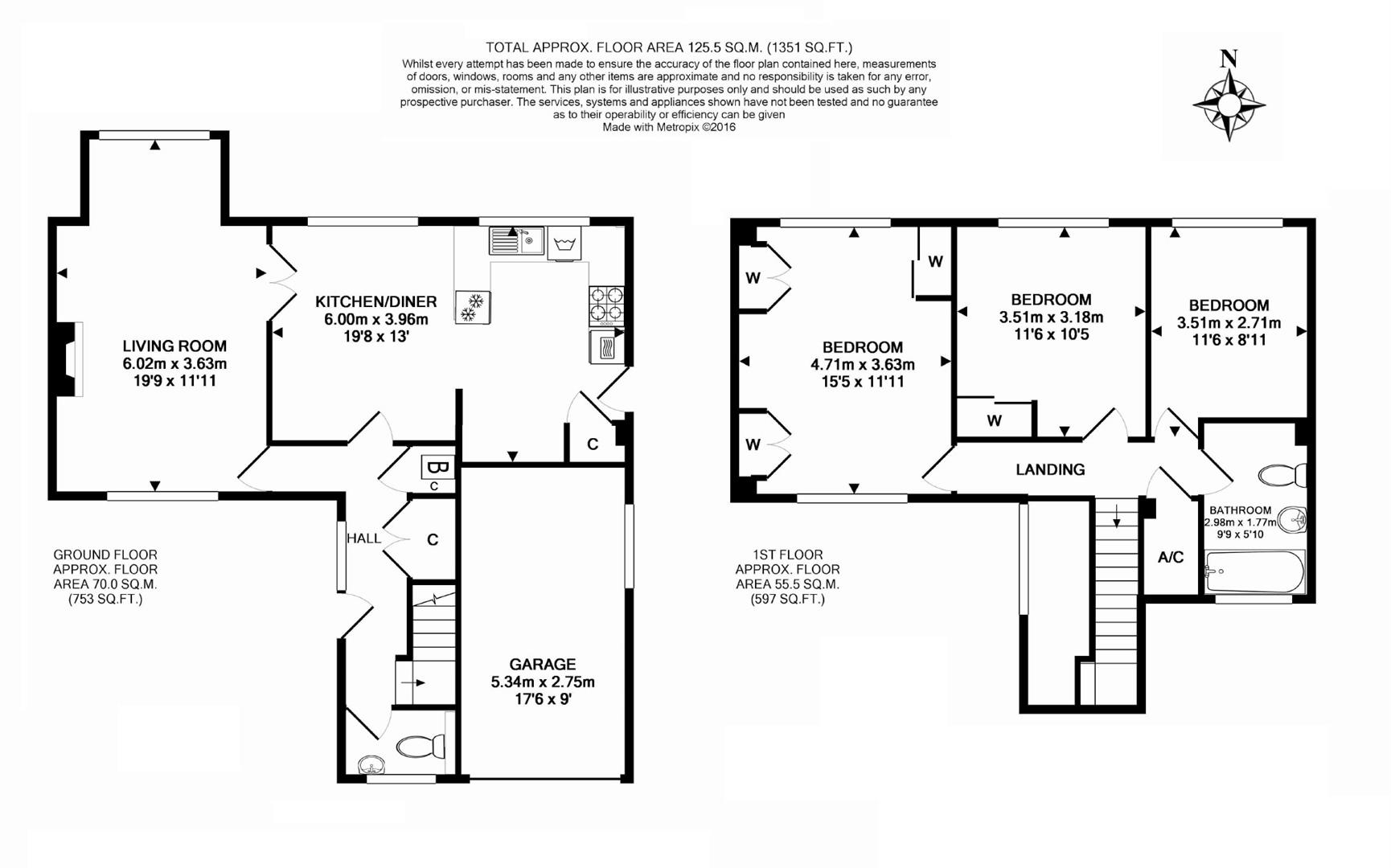
Floorplan for Bath, BA1
Sold Subject to Contract

Floorplan for Bath, BA1
View Floorplan View EPC
Enquire Now Call Us
Take me There More Images
Back to List Search Again